116 children suspected to have died at Fermoy mother and baby...
116 children, aged between 1 hour and 7 and a half years old, are believed to have died at a mother and baby home...
The best of local talent at ‘Hub’ concert
A fundraising concert in aid of 'The Hub', Fermoy took place in The Village Inn, Kilworth last Sunday. Promoted as 'The Big Fat Sunday...
New driving test centre for Mitchelstown
Mitchelstown is set to become the next town in county Cork to host a driving test centre.
Confirming that the Road Safety Authority (RSA) is...
Full house for Claire Downey bingo
Family, neighbours and friends of Claire Downey were out in force at last Saturday night's bingo in Kildorrery. This is the latest in a...
Chapel footage sparks calls for restoration; plans in place
Footage of the old Loreto chapel in Fermoy circulating online has raised calls for the building to be brought back into use, as many...
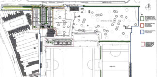
Beechfield residents oppose plans for GAA development
Around 130 signatures have been collected for a petition, in opposition to a proposed development at Fermoy GAA.
Residents of Beechfield Estate have outlined their...
Burncourt beekeeper fears hornet threat
By Matt Quinn
The growing presence of Asian hornets in Cork and further afield, looks set to be a crisis that could devastate pollinators, crops...
Great turnout for Paddy Hartnett bike run
The well established T.O. Park Honda 50 motorbike run took place last Sunday. Over 70 bikes were registered to take part, which was a...
Locals honoured for significant blood donations by the Irish Blood Transfusion...
On Friday last, 5th September, 200 blood and platelet donors from all walks of life were honoured at the IBTS Awards Ceremony in the...
Planning refused for 336 homes on Cork Road
A proposed development of 336 residential units for Fermoy town, has been denied permission by An Coimisiún Pleanála.
The application, submitted last year for the...












